物件を探す

田舎暮らし
物件を探す

清里の森の別荘地 魅力的な築浅住宅【借地権】

住宅

山梨県北杜市高根町

価格 4,200 万円

敷地340坪。高原の気候を楽しむ築浅の住宅。 敷地340坪。高原の気候を楽しむ築浅の住宅。
リビング10帖。その先に小上がりの畳スペース。薪ストーブを設置。 リビング10帖。その先に小上がりの畳スペース。薪ストーブを設置。
ダイニング6帖。リビングから仕切り無く繋がる。 ダイニング6帖。リビングから仕切り無く繋がる。
2階のホール(12.5帖)は伸びやかな雰囲気。 2階のホール(12.5帖)は伸びやかな雰囲気。
2階7.5帖の寝室。奥に収納スペース。 2階7.5帖の寝室。奥に収納スペース。
ダイニングに面したキッチン。コンロはIH。 ダイニングに面したキッチン。コンロはIH。
清潔感のあるお風呂場。 清潔感のあるお風呂場。
建物の東側。砂利敷きの駐車場(2台分)。 建物の東側。砂利敷きの駐車場(2台分)。
デッキから庭を眺める。西隣の区画は現況が雑木林。 デッキから庭を眺める。西隣の区画は現況が雑木林。
1階リビングは吹き抜けの開放的な空間。 1階リビングは吹き抜けの開放的な空間。
トイレ。 トイレ。
敷地340坪。高原の気候を楽しむ築浅の住宅。 敷地340坪。高原の気候を楽しむ築浅の住宅。
リビング10帖。その先に小上がりの畳スペース。薪ストーブを設置。 リビング10帖。その先に小上がりの畳スペース。薪ストーブを設置。
ダイニング6帖。リビングから仕切り無く繋がる。 ダイニング6帖。リビングから仕切り無く繋がる。
2階のホール(12.5帖)は伸びやかな雰囲気。 2階のホール(12.5帖)は伸びやかな雰囲気。
2階7.5帖の寝室。奥に収納スペース。 2階7.5帖の寝室。奥に収納スペース。
ダイニングに面したキッチン。コンロはIH。 ダイニングに面したキッチン。コンロはIH。
清潔感のあるお風呂場。 清潔感のあるお風呂場。
建物の東側。砂利敷きの駐車場(2台分)。 建物の東側。砂利敷きの駐車場(2台分)。
デッキから庭を眺める。西隣の区画は現況が雑木林。 デッキから庭を眺める。西隣の区画は現況が雑木林。
1階リビングは吹き抜けの開放的な空間。 1階リビングは吹き抜けの開放的な空間。
トイレ。 トイレ。
  • 敷地340坪。高原の気候を楽しむ築浅の住宅。 敷地340坪。高原の気候を楽しむ築浅の住宅。
  • リビング10帖。その先に小上がりの畳スペース。薪ストーブを設置。 リビング10帖。その先に小上がりの畳スペース。薪ストーブを設置。
  • ダイニング6帖。リビングから仕切り無く繋がる。 ダイニング6帖。リビングから仕切り無く繋がる。
  • 2階のホール(12.5帖)は伸びやかな雰囲気。 2階のホール(12.5帖)は伸びやかな雰囲気。
  • 2階7.5帖の寝室。奥に収納スペース。 2階7.5帖の寝室。奥に収納スペース。
  • ダイニングに面したキッチン。コンロはIH。 ダイニングに面したキッチン。コンロはIH。
  • 清潔感のあるお風呂場。 清潔感のあるお風呂場。
  • 建物の東側。砂利敷きの駐車場(2台分)。 建物の東側。砂利敷きの駐車場(2台分)。
  • デッキから庭を眺める。西隣の区画は現況が雑木林。 デッキから庭を眺める。西隣の区画は現況が雑木林。
  • 1階リビングは吹き抜けの開放的な空間。 1階リビングは吹き抜けの開放的な空間。
  • トイレ。 トイレ。
  • 敷地340坪。高原の気候を楽しむ築浅の住宅。 敷地340坪。高原の気候を楽しむ築浅の住宅。
    リビング10帖。その先に小上がりの畳スペース。薪ストーブを設置。 リビング10帖。その先に小上がりの畳スペース。薪ストーブを設置。
  • ダイニング6帖。リビングから仕切り無く繋がる。 ダイニング6帖。リビングから仕切り無く繋がる。
    2階のホール(12.5帖)は伸びやかな雰囲気。 2階のホール(12.5帖)は伸びやかな雰囲気。
  • 2階7.5帖の寝室。奥に収納スペース。 2階7.5帖の寝室。奥に収納スペース。
    ダイニングに面したキッチン。コンロはIH。 ダイニングに面したキッチン。コンロはIH。
  • 清潔感のあるお風呂場。 清潔感のあるお風呂場。
    建物の東側。砂利敷きの駐車場(2台分)。 建物の東側。砂利敷きの駐車場(2台分)。
  • デッキから庭を眺める。西隣の区画は現況が雑木林。 デッキから庭を眺める。西隣の区画は現況が雑木林。
    1階リビングは吹き抜けの開放的な空間。 1階リビングは吹き抜けの開放的な空間。
  • トイレ。 トイレ。

山梨県が開発した借地権の分譲地「清里の森」にある住宅。物件は別荘地区の中でも標高の高い北端部に位置し、高原の爽やかな気候が魅力的だ。別荘内のメイン道路に面してアクセスもしやすい。340坪の広々とした敷地に2019年築の住宅が建っている。大屋根の家で、外壁は温かみのある塗り壁、窓の周りに木材をあしらった自然に馴染むデザイン。室内も大変きれいな状態。1階のリビングは吹き抜けの大空間。白の壁紙と床や梁、柱の濃い茶色の木材の対比が美しい。断熱性が高く冬も暖かく過ごせる。庭には落葉樹が間をあけて育ち、四季の移ろいを楽しめる。落葉する冬は庭に野鳥を招いても良いだろう。

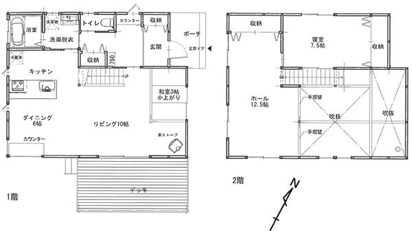
物件間取り

配置図

物件情報

  • 物件No.

    17451B

  • 所在地

    山梨県北杜市高根町

  • 種別

    住宅

  • 地目

    山林   

  • 地勢

    平坦地

  • 土地面積

    1126㎡(340.61坪)

  • 建物構造

    木造鋼板葺2階建 1階63.76㎡(19.28坪) 2階40.99㎡(12.39坪) 延104.75㎡(31.67坪) 平成29年3月築

  • 延床面積

    104.75㎡(31.68坪)

  • 接道状況

    東側が幅約10mの舗装公道に接する。

  • 都市計画

    区域外

  • 建ぺい率

    20%

  • 容積率

    40%

  • 設備

    電気、公営水道、水洗(浄化槽)、PG

  • 交通

    小海線清里駅より約2.8km、中央道長坂ICより約14km 車で22分

  • 生活

    高根総合支所、スーパー、小学校へ約13km、コンビニ、郵便局、診療所へ約3km

  • 備考

    ・土地は借地権・借地料:164,667円/年 共益費:47,000/年・借地期間の更新可・更新料不要・建ぺい率・容積率は清里の森自主規制

※ 赤印はおおよその場所を示すもので、場所は特定していません
お気軽にお問い合わせください。
お問い合わせはこちらお問い合わせはこちら
お電話でのお問い合わせ 0551-46-2116 平日 9:30〜17:30 / 土曜 9:30〜15:300551-46-2116 (平日 9:30〜17:30 土曜 9:30〜15:30)

※電話でお問い合わせの際は、「 物件no. 17451B 」をお伝えいただくとスムーズです。

  • ※契約済の場合は、条件変更が反映されていない場合がありますので、最新の情報に関しましてはお問い合わせの上、ご確認ください。
  • ※掲載されている図面・データが現況と異なる場合は、現況を優先します。