更新日:2025/12/14次更新:2026/3/31
物件no.18367B
【住宅】八ヶ岳南麓の大泉高原 生活設備充実 瀟洒な築浅住宅
北杜市大泉町4,000万円
小海線甲斐大泉駅より約800m、中央道長坂ICより約7km 車で10分
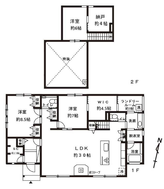
北杜市の大泉高原に位置。高原の爽やかな気候が魅力で、以前はペンションが多く営まれ、現在はお洒落な飲食店や、パン屋が点在し、観光、別荘、移住にと人気のエリア。物件は令和3年12月築の住宅。定評のある地元工務店が施工したもので、まだまだ新しく、新築と見紛う程。大屋根と木目調の外壁のシックな外観。一転、室内へ入ると白を基調とした軽やかな雰囲気に変わる。吹き抜けの約30帖のLDKには薪ストーブを設置。開放的なアイランドキッチンでは、家族やゲストと語らいながら調理ができる。ランドリールーム、ウォークインクローゼット等の生活を快適する設備が充実。お庭の南方向に樹幹越しに富士山が望める。コンビニ、温泉施設まで徒歩圏。
薪ストーブウッドデッキ山の眺望ガーデニング・菜園森築浅ログハウス〜600m600〜800m800〜1000m1000m〜
物件情報詳細
| 所在地 | 山梨県北杜市大泉町西井出 | ||
|---|---|---|---|
| 土地 | 772.08m2 | 地目 | 宅地 |
| 地 勢 | 平坦地 | 都市計画 | 区域外 |
| 建ぺい率 | 40% | 容積率 | 100% |
| 法令 | 北杜市まちづくり条例 | ||
| 建物 | 木造合金メッキ鋼板葺2階建 1階118.41㎡(35.81坪) 2階19.87㎡(6.01坪) 延138.28㎡(41.82坪) 令和3年12月築 | ||
| 道路 | 東側が幅約10mの舗装公道に接する。 | ||
| 設備 | 電気、公営水道、公共下水、IHコンロ | ||
| 交通 | 小海線甲斐大泉駅より約800m、中央道長坂ICより約7km 車で10分 | ||
| 生活 | 大泉総合支所・小学校・郵便局へ約4.7km、コンビニへ約250m、スーパーへ約5km、診療所へ約2.5km、温泉施設まで約600m | ||
| 標高 | 約1090 m | 取引態様 | 仲介 |
| 備考欄 | |||
所在地のMAP
※地図は町域を表しており、物件の正確な位置ではありません。
「メール」または「電話」で、お気軽にお問い合わせください。
Tel: 0551-46-2116Tel: 0551-46-2116
※電話でお問い合わせの際は、
「 物件no. 18367B 」を
お伝えいただくとスムーズです。
「 物件no. 18367B 」を
お伝えいただくとスムーズです。
※契約済の場合は、条件変更が反映されていない場合がありますので、最新の情報に関しましてはお問い合わせの上、ご確認ください。
※掲載されている図面・データが現況と異なる場合は、現況を優先します。

