更新日:2025/10/23次更新:2025/12/23
物件no.18281Y
【住宅】南アルプスの麓にある 森に包まれ静寂を楽しむ別荘
北杜市武川町700万円
中央本線日野春駅より約8.1km、中央道須玉ICより約9.4km 車で18分
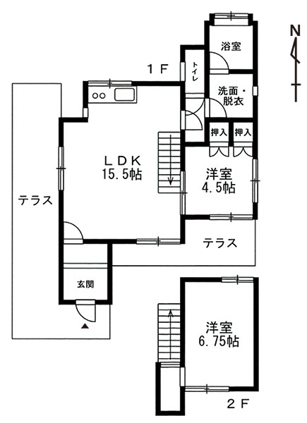
北杜市武川町は、南アルプスと八ヶ岳に抱かれた、大自然豊かなエリア。物件の近くには、日本三大桜として知られる神代桜、眞原の並木道などの桜の名所がある。また、ミネラル豊富な温泉や、幻のブランド米「農林48号」の生産地としても有名。本物件は、広域農道より200mほど入った場所の分譲地内。周囲は、10件ほどの別荘があり、定住者も点在している。建物は、平成2年築の2階建。室内は、勾配天井になっており、山小屋のような雰囲気。1階の15.5帖のLDKは、吹抜けになっており、2階はロフト部屋になっている。広々としたテラスは、食事やくつろぎの空間として活躍するだろう。水道は共有井戸。
薪ストーブウッドデッキ山の眺望ガーデニング・菜園森築浅ログハウス〜600m600〜800m800〜1000m1000m〜
物件情報詳細
| 所在地 | 山梨県北杜市武川町 | ||
|---|---|---|---|
| 土地 | 334m2 | 地目 | 宅地 |
| 地 勢 | 平坦地 | 都市計画 | 区域外 |
| 建ぺい率 | 50% | 容積率 | 100% |
| 法令 | 北杜市まちづくり条例 | ||
| 建物 | 木造ガルバリウム鋼板葺2階建 1階40㎡(12.1坪) 2階18㎡(5.4坪) 延58㎡(17.5坪) 平成2年1月築 | ||
| 道路 | 南側が幅約6m舗装私道に接する。 | ||
| 設備 | 電気、共有井戸、水洗(単独浄化槽)、PG | ||
| 交通 | 中央本線日野春駅より約8.1km、中央道須玉ICより約9.4km 車で18分 | ||
| 生活 | 武川総合支所へ約3.5km、スーパーへ約3.8km、小学校、郵便局、病院へ約3.9km、コンビニへ約4.9km、 | ||
| 標高 | 約645 m | 取引態様 | 仲介 |
| 備考欄 | 建物未登記、共有井戸(4万円/年)、持分道路あり、 | ||
所在地のMAP
※地図は町域を表しており、物件の正確な位置ではありません。
「メール」または「電話」で、お気軽にお問い合わせください。
Tel: 0551-46-2116Tel: 0551-46-2116
※電話でお問い合わせの際は、
「 物件no. 18281Y 」を
お伝えいただくとスムーズです。
「 物件no. 18281Y 」を
お伝えいただくとスムーズです。
※契約済の場合は、条件変更が反映されていない場合がありますので、最新の情報に関しましてはお問い合わせの上、ご確認ください。
※掲載されている図面・データが現況と異なる場合は、現況を優先します。

